Détails du bien
- Code postal : 75004
- Surface habitable (m²) : 27.35 m²
- Surface loi Carrez (m²) : N/A
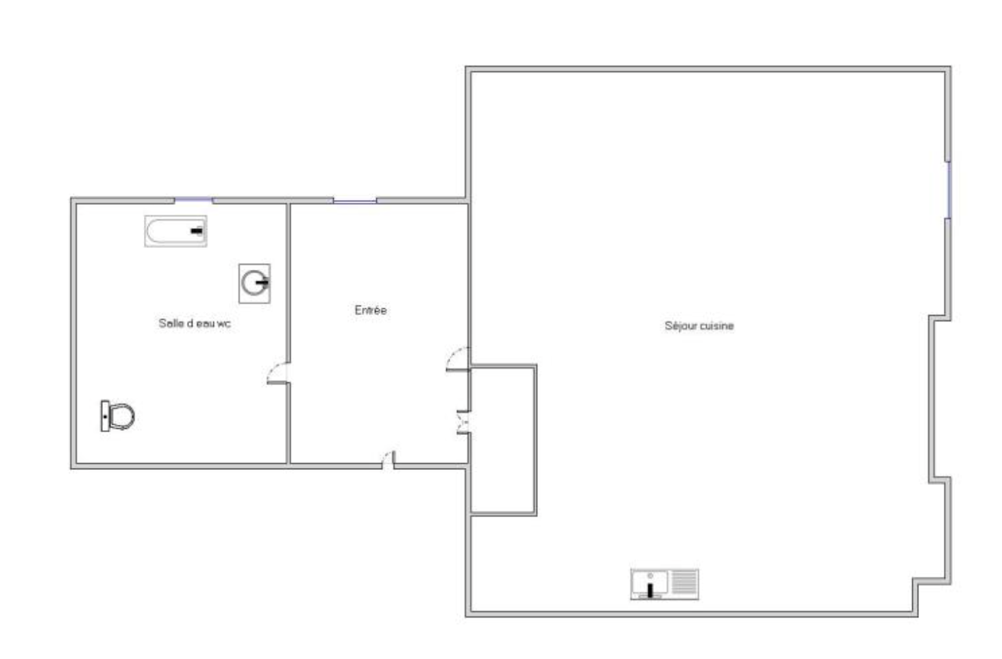
- Nombre de pièces : 1
- Etage : 1
- Nombre de niveaux : 3
- Ascenseur : NON
- Nb de salle de bains : 1
- Mode de chauffage : Individuel électrique radiateur
- Interphone : NON
- Visiophone : NON
- Terrasse : NON
- Cave : OUI
- Exposition : Sud
- Copropriété : OUI
Diagnostic énergétique du bien
Logement à consommation énergétique excessive : classe F
Géorisques
Les informations sur les risques auxquels ce bien est exposé sont disponibles sur le site Géorisques https://www.georisques.gouv.fr
Paris IV
Paris 4e Saint-Paul
Appartement - 1 pièce - 27.35 m²
Studio 27 m2 Calme et lumineux Exposition sud
À proximité immédiate du métro Saint-Paul, dans un immeuble du XVIIe siècle, ce studio de 27,35 m2 Carrez est situé au 1er étage avec ascenseur.
Exposé plein sud, il donne sur une cour dégagée et arborée, offrant un environnement calme et lumineux.
L'appartement se compose :
D'une pièce de vie avec cuisine ouverte,
D'une salle de bains avec WC,
Et conserve le charme de l'ancien avec ses poutres apparentes et sa cheminée d'origine.
Une cave complète ce bien.
Un appartement fonctionnel et agréable, idéal pour un pied-à-terre, un premier achat ou un investissement, dans l'un des quartiers les plus recherchés du Marais.