Détails du bien
- Code postal : 92700
- Surface habitable (m²) : 415.4 m²
- Surface loi Carrez (m²) : N/A
- Nombre de chambre(s) : 15
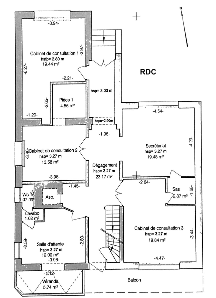
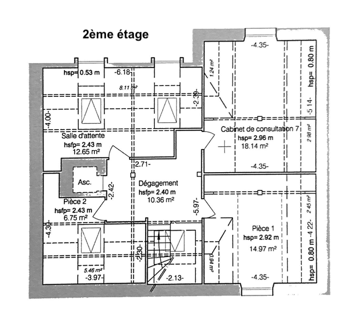
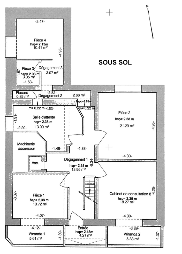
- Nombre de pièces : 17
- Nombre de niveaux : 4
- Ascenseur : NON
- Nb de salle d'eau : 1
- Interphone : NON
- Visiophone : NON
- Terrasse : NON
- Cave : NON
- Exposition : Sud
- Copropriété : NON
Diagnostic énergétique du bien
Géorisques
Les informations sur les risques auxquels ce bien est exposé sont disponibles sur le site Géorisques https://www.georisques.gouv.fr
Meulière Centre ville – Les Vallées Colombes
Maison/villa - 17 pièces - 415.4 m²
À Colombes, à quelques pas de la mairie et de la gare, une grande maison de 420 m2 attend simplement qu'on lui imagine une nouvelle vie.
Derrière cette adresse centrale : 17 pièces, un ascenseur, du charme, plusieurs niveaux et beaucoup d'espace pour penser grand.
Maison familiale hors norme. Projet de coliving. Division en plusieurs appartements. Investissement locatif ambitieux.
Ici, les scénarios sont nombreux.
Les volumes sont généreux, la lumière circule, les étages se prêtent naturellement à la création de chambres ou d'appartements indépendants avec salles d'eau.
À l'extérieur, 400 m2 de terrain prolongent la maison avec un jardin et un espace de stationnement -- un luxe dans ce quartier vivant de Colombes.
À moins de quelques minutes de Paris, la ville attire aujourd'hui une nouvelle génération d'actifs à la recherche d'espace et de projets de vie différents.
Cette maison n'est pas seulement grande. Elle est pleine de possibilités.
Un lieu à transformer. Un actif à révéler.